В Энгельсе у кладбища построят литейный цех на 35 тысяч тонн металла в год
- 07:21 12 ноября
- Григорий Овчинников

Новый цех в Энгельсе на пути к железнодорожной революции
В Энгельсе раскрыты новые детали проекта по возведению производственного цеха, который будет построен на территории особой экономической зоны технико-внедренческого типа. Изменения в документацию, касающуюся планировки земельных участков для этой зоны, были утверждены 10 ноября министром строительства и ЖКХ Михаилом Бутылкиным.
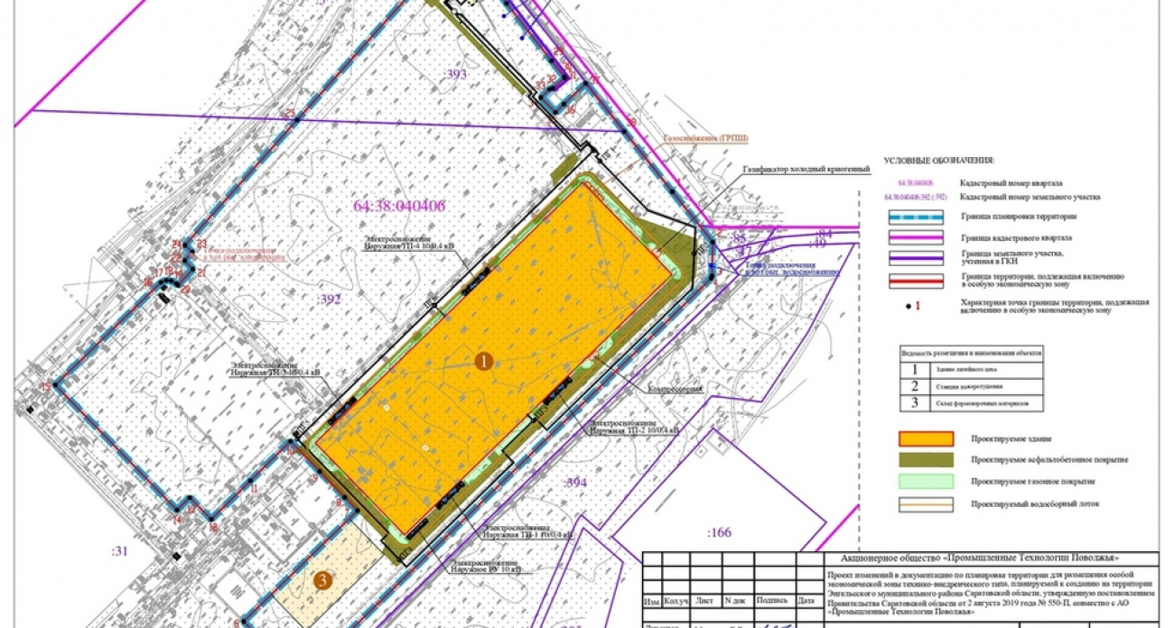
Ранее уже сообщалось, что акционерному обществу "Промышленные Технологии Поволжья" были выделены два земельных участка для расширения особой экономической зоны. Их кадастровые номера: 64:38:040406:392 площадью 97 822 квадратных метра и 64:38:040406:393 площадью 14 698 квадратных метров. Эти участки расположены на окраине города, вблизи от завода металлоконструкций, "Локомотивного завода" и Эльтонского кладбища. Изначально на этой территории предполагалось создать литейное производство.
Целью корректировок в проектной документации является включение упомянутых земельных участков в состав особой экономической зоны. На них будет возведено здание литейного цеха, а также сопутствующие постройки и сооружения для его обслуживания. Об этом говорится в проекте:
Основной целью изменений в документацию по планировке территории является включение в особую экономическую зону земельных участков с кадастровыми номерами 64:38:040406:392 и 64:38:040406:393 на которых будет располагаться здание литейного цеха, а также вспомогательные строения и сооружения для обслуживания основного здания, - уточняется в проекте.
Новый производственный объект будет специализироваться на изготовлении железнодорожной продукции методом литья. Предполагаемая годовая производительность цеха составит до 35 тысяч тонн жидкого металла, до 4000 вагонокомплектов крупного литья и до 12000 вагонокомплектов "среднего" литья.
Площадь застройки основного здания достигнет 30 тысяч квадратных метров. Цех будет одноэтажным, его высота не превысит 30 метров. Под озеленение территории планируется отвести 11 252 квадратных метра.
Подробные сведения о документе и проекте опубликованы. Об этом сообщает издание Версия Саратов.
Как сообщалось ранее, правительство Саратовской области и АО «Промышленные Технологии Поволжья» заключили соглашение о реализации инвестиционного проекта в Энгельсе, что привело к началу изменений в генеральный план города. 1 августа министр строительства и ЖКХ Саратовской области Михаил Бутылкин подписал документ, который запустил процесс подготовки изменений в градостроительную документацию. Целью было расширение существующей с 2019 года особой экономической зоны технико-внедренческого типа для строительства завода по производству комплектующих для железнодорожного транспорта, включая литейное производство. Для этого были выделены два земельных участка с кадастровыми номерами 64:38:040406:392 и 64:38:040406:393 на окраине города. Финансирование проекта осуществлялось из бюджета Саратовской области и средств АО «Промышленные Технологии Поволжья».