Подрядчика для строительства крупнейшего детсада в Саратовской области не могут найти больше месяца
- 15 апреля 2025
- Григорий Овчинников

Детский сад мечты на Шуровой горе ждет своего строителя
В Энгельсе продолжаются трудности с определением подрядчика для строительства нового детского сада на Шуровой горе, рассчитанного на 400 мест. Этот объект планируется как крупнейший в Саратовской области, превосходя предыдущие проекты детских садов на 300 мест, построенных с нуля.
Согласно информации, опубликованной изданием "Свободные новости", конкурсная документация была изменена уже в 11-й раз. Последнее изменение произошло 14 апреля, что привело к очередному переносу сроков подведения итогов торгов. Теперь ожидается, что результаты будут объявлены 30 апреля 2025 года. Аукцион был объявлен 7 марта, и, таким образом, процесс выбора подрядчика затягивается уже более чем на месяц.
Несмотря на то, что детали, доступные неспециалистам, ограничены, известно об изменении стоимости контракта. Первоначальная оценка строительства детского сада на Шуровой горе составляла 761 миллион рублей, но теперь она снижена до 756,23 миллиона рублей, что на 5 миллионов рублей меньше. Срок выполнения работ остается прежним — 30 августа 2027 года.
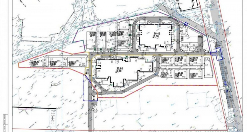
Проект детского сада предусматривает два корпуса: двухэтажный на 120 мест (шесть групп) и трехэтажный на 280 мест (12 групп). Они будут расположены на пустыре между Шуровой горой, улицей 1-я Пономаревская и новой поликлиникой на Лесозаводской, завершение строительства которой запланировано на этот год.
Отмечается, что подобных учреждений в регионе еще не строилось. Проектированием занималось ООО «Саратовпроект» в течение нескольких лет.