Министр утвердил застройку пустыря в Солнечном-2: на месте долгостроя появится новый микрорайон
- 3 октября 06:51
- Григорий Овчинников

Новый облик Солнечного-2: от пустыря к современному микрорайону
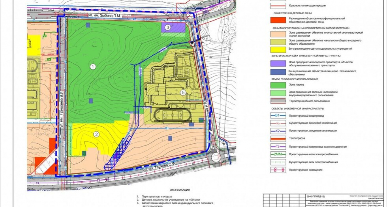
В Саратове официально утверждены корректировки в проект планировки 8-го микрорайона Солнечного-2. Соответствующий приказ был подписан министром строительства и ЖКХ области Михаилом Бутылкиным на текущей неделе. Документ подтверждает новый вариант проекта застройки этого квартала, который предназначен для комплексного развития и выделен в особую зону смешанной жилой и деловой застройки (ОЖ).
Восьмой микрорайон представляет собой незастроенную территорию на границе жилой части, расположенную между улицами Тархова, Гришаева, Зыбина и Кузнецова. При этом отрезок улицы Зыбина, ведущий до новой кольцевой развязки на границе с поселком Расково Гагаринского района, еще не построен. На пересечении улиц Тархова и Гришаева находится объект незавершенного строительства, который в прошлом году был приобретен компанией "Кронверк" у Фонда развития территорий.
Значительная часть микрорайона отведена под возведение самой крупной школы в городе, рассчитанной на 1500 учеников. Основная цель проекта планировки, разработанного ГБУ "Саратовпроект", заключалась в выделении большей части 8-го микрорайона для создания парка "Соловьиная роща". Кроме того, предусмотрено строительство дошкольного учреждения, способного принять 400 детей. Общая площадь квартала составляет 21,5 гектара. На этой территории планируется разместить парк, школу и детский сад.
Под жилую застройку останутся небольшие земельные участки со стороны улицы Тархова. На них предполагается построить около 30 тысяч квадратных метров жилья, что позволит обеспечить проживание примерно 938 человек. Как пишут на сайте Версия Саратов, согласно данным, представленным в сопутствующих документах, школу на 1500 мест планируется достроить к 2028 году, а парк и детский сад на 400 мест - в период с 2026 по 2030 годы.
Все началось с того, что в июле 2025 года городские власти Саратова активно занялись пересмотром использования земельных участков. 16 июля глава Саратова Михаил Исаев подписал постановление об изъятии 16 гаражей и участков в Заводском районе. После этого, 4 августа 2025 года министр Михаил Бутылкин издал приказ о предоставлении ООО «Госжилстрой» разрешения на использование двух земельных участков в микрорайоне Солнечный-2 для парковок. Затем, 14 августа, Михаил Бутылкин также подписал приказ об обустройстве новой зоны отдыха площадью 9,1 гектара в Заводском районе, скорректировав генеральный план города.